232 m² kernsaniertes Zweifamilienhaus mit Remise, Innenhof und moderner Energietechnik
Objektart
Adresse
Objektdaten
Informationen
Ausstattung
Details
Dieses außergewöhnliche Zweifamilienhaus verbindet historische Architektur mit moderner Technik und hochwertiger Ausstattung. Das Gebäude wurde ursprünglich um ca. 1890 errichtet und 2024 umfassend modernisiert und technisch auf einen zeitgemäßen Stand gebracht.
Das Ergebnis ist ein stilvolles Wohnhaus mit zwei separaten Wohneinheiten und einer vielseitig nutzbaren Remise im Innenhof. Die Kombination aus großzügigen Wohnflächen, moderner Gebäudetechnik und einem geschützten Hofbereich schafft ein Wohnumfeld mit hohem Komfort und vielfältigen Nutzungsmöglichkeiten.
Beide Wohneinheiten verfügen über separate Eingänge und lassen sich sowohl als klassisches Zweifamilienhaus, Mehrgenerationenhaus oder auch zur teilweisen Vermietung nutzen.
Das Gebäude befindet sich auf einem ca. 430 m² großen Grundstück mit Innenhof, Grünfläche und gepflasterter Zufahrt. Mehrere Stellplätze sowie moderne Ladeinfrastruktur für Elektrofahrzeuge stehen zur Verfügung.
FLÄCHENAUFTEILUNG
Laut Wohnflächenberechnung des Architekten beträgt die gesamte Wohnfläche ca. 232 m².
WOHNUNG 1 - ERDGESCHOSS
o Wohnfläche ca. 91,22 m²
o 3 Zimmer
o Wohnzimmer
o Schlafzimmer
o Arbeitszimmer
o Küche
o Bad mit Dusche und Badewanne
o Flur / Diele
o Zugang zum Hausflur
Diese Einheit eignet sich ideal für Eigennutzung oder Vermietung.
WOHNUNG 2 - OBERGESCHOSS UND DACHGESCHOSS
o Wohnfläche ca. 140,91 m²
o insgesamt 5 Zimmer
o großzügiger Wohnbereich
o Schlafzimmer
o Arbeitszimmer
o weitere Zimmer im Dachgeschoss
o Küche mit Kochinsel
o zwei Bäder
o Flur und Treppenbereich
o zusätzliche Dachräume
Die Wohnung bietet ein großzügiges Raumangebot und eignet sich hervorragend als Familienwohnung.
GRUNDSTÜCK UND AUSSENBEREICH
o Grundstücksgröße ca. 430 m²
o geschützter Innenhof
o Rasenfläche
o gepflasterte Terrasse
o 4 PKW-Stellplätze
o Toreinfahrt mit Überdachung
o Wallbox für Elektrofahrzeuge
Der Innenhof schafft eine private und ruhige Atmosphäre mitten im gewachsenen Ortskern.
2024 MODERNISIERUNG UND SANIERUNG
Das Gebäude wurde umfangreich saniert und technisch modernisiert.
GEBÄUDE / BAUKÖRPER
o umfassende Sanierung des Wohnhauses
o neues Dach inkl. Dachdämmung ca. 30 cm
o neue Dachfenster mit außenliegenden elektrischen Jalousien
o Fassadendämmung ca. 16 cm
o neue Fenster im gesamten Gebäude
o neue Hauseingangstüren und Innentüren
o neue Naturstein-Fensterbänke innen und außen
ENERGIEAUSWEIS
o Energiebedarfsausweis
o Endenergiebedarf: 29,8 kWh/(m²·a)
o Energieeffizienzklasse: A+
o energetisches Niveau im Bereich moderner KfW-Effizienzhäuser (ca. KfW 40-55)
o sehr niedriger Energiebedarf durch umfassende Sanierung und moderne Wärmepumpentechnik
HAUSTECHNIK
o Wärmepumpe (Buderus) als zentrale Heizungsanlage
o komplett erneuerte Heizungsinstallation
o vollständig erneuerte Elektroinstallation
o vollständig erneuerte Sanitärinstallation
o Photovoltaikanlage mit ca. 8 kWp
o Batteriespeicher zur Nutzung des erzeugten Stroms
o Vorbereitung und Installation von 4 Wallboxen im Hof
o neue Beleuchtungssysteme und moderne Elektroanschlüsse
INNENAUSBAU
o hochwertiger Eichenparkettboden
o teilweise Vinylböden
o neue u. überarbeitete Treppenanlage aus Echtholz Eiche
o moderne Bäder mit hochwertiger Ausstattung
o Bad mit Badewanne und Walk-in-Dusche
o weiteres Bad mit Dusche
o zusätzliche Gäste-Dusche
o Einbauküchen mit modernen AEG-Geräten
o eine Küche mit Kochinsel
o hochwertige Innenausstattung im gesamten Gebäude
KELLER
o großzügiger Gewölbekeller
o Haustechnik und Wärmepumpe im Kellerbereich
o zusätzliche Lager- und Nutzflächen
AUSSENANLAGEN
o komplett neu gestalteter Innenhof
o neu angelegte Rasenfläche
o gepflasterte Terrasse
o gepflasterte Hofeinfahrt
o 4 PKW-Stellplätze
o überdachte Toreinfahrt (auch als Carport nutzbar)
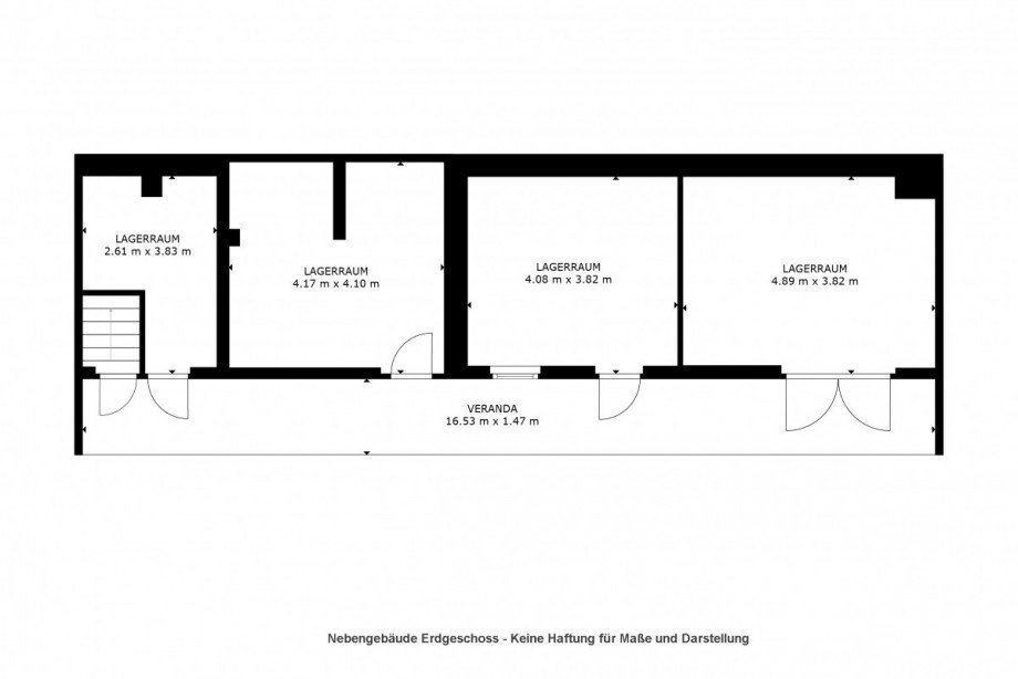
REMISE / NEBENGEBÄUDE
o Remise vollständig instand gesetzt
o vielseitig nutzbar als Werkstatt, Atelier oder Hobbyraum
o neue Türen im Nebengebäude
o neue Schweißbahnabdichtung
o Elektrik in der Remise erneuert
Die Immobilie befindet sich im Potsdamer Stadtteil Bornim, einem beliebten Wohngebiet im nördlichen Bereich von Potsdam. Die Umgebung ist geprägt von historischer Bebauung, Einfamilienhäusern und viel Grün.
Bornim bietet eine angenehme Mischung aus ruhigem Wohnen und guter Anbindung an die Potsdamer Innenstadt.
In wenigen Minuten erreichbar sind:
o Einkaufsmöglichkeiten
o Bäckereien
o Ärzte und Apotheken
o Kindergärten und Schulen
o Restaurants und Cafés
Die Verkehrsanbindung ist ebenfalls sehr gut:
o Busanbindung Richtung Potsdam Zentrum
o schnelle Verbindung zur B273
o kurze Wege nach Berlin
Die Nähe zu den Schloss- und Parkanlagen von Sanssouci sowie zahlreiche Freizeitmöglichkeiten machen den Standort besonders attraktiv.
Anfragen werden nur unter Angabe des vollständigen Namens, der Adresse sowie einer Telefonnummer bearbeitet.
Der Nachweis bezieht sich auf das hier angebotene Objekt. Änderungen einzelner Vertragsinhalte - insbesondere bei Mieteinnahmen, Kaufpreis, Flächenangaben (z. B. Wohn-, Nutz- oder Grundstücksfläche), Baurechtsauskünften oder Bebauungsmöglichkeiten - berühren den Provisionsanspruch nicht, sofern das Objekt im Wesentlichen identisch bleibt und ein wirksamer notarieller Kaufvertrag zustande kommt.
Die Angaben in diesem Exposé beruhen auf Informationen, die uns vom Verkäufer oder Dritten zur Verfügung gestellt wurden. Trotz sorgfältiger Prüfung übernehmen wir keine Haftung für deren Richtigkeit und Vollständigkeit. Insbesondere stellen die Angaben keine Beschaffenheitsgarantie im Sinne des § 443 BGB dar. Der Empfänger ist gehalten, alle Informationen - insbesondere Flächenangaben, Grundrisse und Beschreibungen - vor Abschluss eines Kaufvertrags selbst zu überprüfen.
Hinweis gemäß § 654 BGB: Der Makler ist auch für den Verkäufer tätig (Doppeltätigkeit).
Downloads
Energieausweis (Bedarfsausweis)
29,80 kWh / (m²*a) Endenergiebedarf
29,80 kWh / (m²*a) Endenergiebedarf
29,80 kWh / (m²*a) Endenergiebedarf
Weitere Informationen
| Wesentlicher Energieträger | Wärmepumpe |
| Energieausweis Ausstelldatum | 2025-11-05 |
| Energieausweis gültig bis | 04.11.2035 |
| Energieausweis Jahrgang | ab dem 1.5.2014 |
| Energieverbrauch für Warmwasser | enthalten |
| Energieausweis Werteklasse | A+ |
| Energieausweis Baujahr | 1890 |
| Energieausweis Gebäudeart | Wohngebäude |
| Befeuerung | Luft-/Wasser-Wärmepumpe |
Ich bin damit einverstanden, dass mir Karten von Google angezeigt werden. Es gelten die Datenschutzbedingungen von Google (https://policies.google.com/privacy).
Ich bin einverstanden